Skip to content
Press
shift
+
◄
to open this menu
Support Our Work
News & Features
Outdoors
Sports
Arts
Opinion
Events
Daily Roundup
Newsletters
Glacier Park Prints
Flathead Living
Glacier Journal
Sponsored
Police Blotter
Reader Poll
Photos & Video
Recent Publications
Public Notices
Podcasts
About Us
Advertise
Contact Us
{ document.querySelector('#search').focus(); }); " class="-m-2 p-2 border border-transparent rounded focus:outline-none focus:shadow-outline-red focus:border-red-500" aria-label="Open search">
Search in https://flatheadbeacon.com/
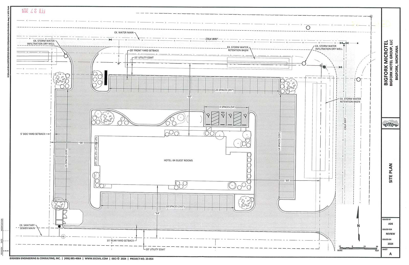
FCU-24-05 Bigfork Hotel Group_Site Plan copy
By Tristan Scott
November 6, 2025