Board Approves Conditional Use Permit for Bigfork Hotel
Board members unanimously approved the permit for the 65-unit hotel after delaying the project’s application over a year to address concerns about traffic and local sewer capacity
By Zoë Buhrmaster
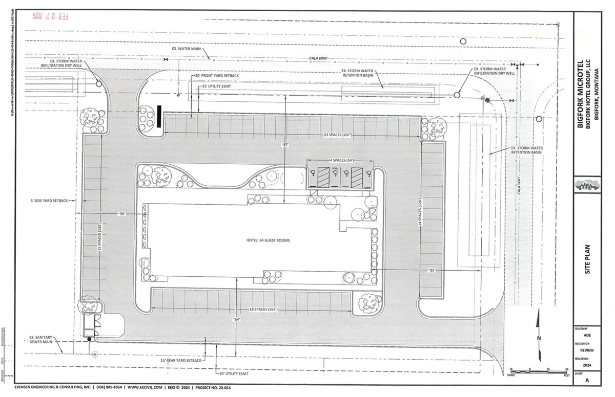
The Flathead County Board of Adjustment on Tuesday approved the Conditional Use Permit (CUP) for a three-story hotel just off the Swan Highway in Bigfork.
The 2-acre site is located just east of the intersection of Montana Highway 83 and Montana Highway 35. Bigfork Hotel Group LLC, the project’s applicant, proposed the hotel at 1247 Cala Way as a 65-room, economy-style Microtel by the Wyndham Hotel Management Group.
In April 2024, the Bigfork Land Use Advisory Committee (BLUAC) held a public hearing on the project before sending the project to the Board of Adjustment. The committee recommended that it deny the permit, citing concerns about the building’s aesthetics, an increase to traffic, and local sewer capacity.
The following month, the Board of Adjustment held a separate public hearing. The project engineer addressed the aesthetic concerns, noting that the design met the subdivision’s HOA standards. Failing to properly address the other two inquiries, board members tabled the development. The proposal was scheduled to go before the board again in October 2025 but was postponed due to a lack of board members at the meeting.

Back before the board on Tuesday, Nov. 4, all five members reviewed the project application again, with updated information including a Traffic Impact Study and a subsequent letter from the Montana Department of Transportation (MDT). MDT officials wrote that the department supported installing a left-turn lane to address traffic along Highway 83 turning into Cala Way from the eastern approach.
BLUAC did not have the opportunity to review the newly submitted materials as the committee’s public hearing had already closed.
“I travel that road back and forth a lot, and in the summer I can just imagine how traffic would back up at the intersection of [Highway] 35 and [Highway] 83,” Board member Roger Noble said.
Board members amended the proposal’s conditions to hinge their approval of the project on MDT’s support of a left-turn lane prior to the hotel’s construction.
“My feeling is that if they’re working in coordination with MDT and that’s a condition, I think I’d be fine leaving that up to them to figure out what the workable solution would be,” Board member Tom Davis said. “We’re kind of at a, ‘what came first, the chicken or the egg?’ Do we have them button up all these things — which would be obviously an expense to the applicant — or do we condition it and trust that these individual agencies, whether it’s Bigfork Water and Sewer or MDT, will solve it?”
In regard to concerns about whether Bigfork Water and Sewer District had enough capacity for the 65-unit hotel, the developer submitted a letter from sewer district officials stating that the district had enough capacity to service the project’s estimated needs. They also noted that that the developer still would need to formally send the district the project plans in order to guarantee services.
With the amended condition emphasizing the need for a left-turn lane, all five board members unanimously approved the hotel’s CUP.